PRODUKTY
 
česky english deutsch по-ру́сски
TopGrafika

Filtr 80 RAV

Obsah

  1. Použití filtračního zařízení
  2. Základní technické údaje
  3. Hlavní připojovací rozměry

  1. Použití filtračního zařízení Filtrační zařízení je určeno k odsávání a filtraci kovových i nekovových prachů a drobných částic. Jsou vhodné pro odsávání prachů vznikajících při různých technologických procesech. Možnost konkrétního použití filtračního zařízení je nutno konzultovat s výrobcem zařízení. Na základě toho se vytypují vhodné filtrační tkaniny. Filtr 75 RAV je určen pro práci v prostředí bez nebezpečí výbuchu při teplotách okolí
    -10°C až +40°C. Odsavače se umisťují uvnitř budov nebo minimálně pod přístřešek zajišťující ochranu proti povětrnostním vlivům. Filtr 75 RAV je vybaven regenerací atmosferickým vzduchem. To znamená, že po určité době dojde k automatickému zpětnému profuku filtrační tkaniny a tím k jejímu pročištění.

  2. Popis
    Instalované příkony - pohon regenerace
                                 - těsnicí zařízení (turniket)
                                 - šnekový dopravník ((odsun) z filtru)
    0,25 kW
    1,1 kW
    0,75 kW
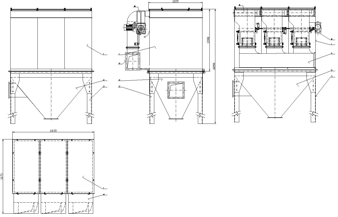
    Hlavní rozměry šířka x hloubka x výška 3147x3034x3520 mm
    Hmotnost 1600,- kg
    Filtrační plocha 75 m2
    Maximální vlhkost prachu 8%
    Podtlakový systém filtru tvoří vysokotlaký ventilátor RVI 630 15kW


    Typ ventilátoru se může lišit na základě členitosti technologické linky.

    Výstupní koncentrace pevných látek na výstupu z filtru se pohybuje dle zatížení mezi 1-10mg/m3.

  3. Hlavní připojovací rozměry
     
  4.