PRODUKTY
 
česky english deutsch по-ру́сски
TopGrafika

Odlučovače SEA a VPC

   

Odlučovače SEA

Obsah

  1. Tlaková ztráta odlučovače
  2. Popis
  3. Hlavní připojovací rozměry
  1. Tlaková ztráta odlučovače

    SEA 630 SEA 1000 SEA 1600
  2. Popis

    Odlučovač SEA slouží k odlučování tuhých nehořlavých příměsí ze vzdušiny do teploty 300°C a pro podtlak max. 3000 Pa. Odlučovač SEA je zvlášť vhodný pro odlučování hrubých neabrazivních příměsí v dřevozpracujícím průmyslu - piliny, hobliny, štěpky. Dá se použít i pro odlučování vláknitých materiálů. Odlučovač SEA je možno použít jako první stupeň při vícestupňovém odlučování.
    Vyrábí se ve velikostech 630, 1000 a 1600 v uspořádání buď jednotlivě nebo ve dvojicích a to bez konstrukce nebo s konstrukcí.

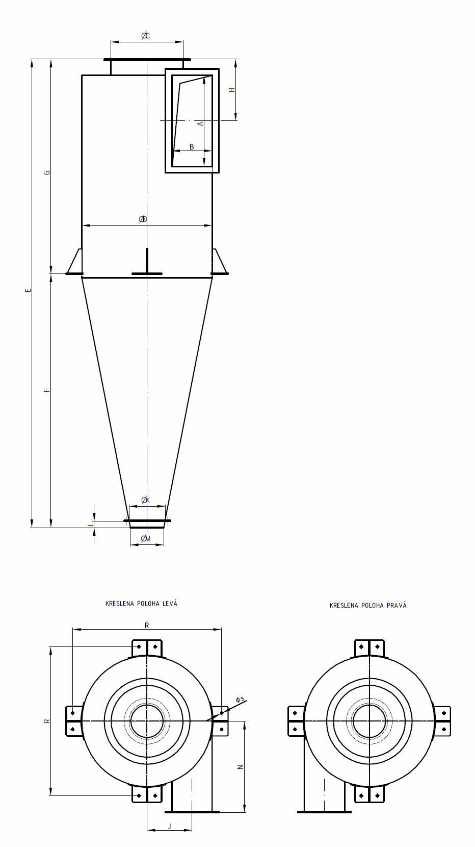
  3. Hlavní připojovací rozměry

Velikost
 odlučovače
ROZMĚRY (mm)
A
B
C
D
E
F
G
H
J
K
L
M
N
hmotnost
 (kg)
630 T3/1
500
225
355
630
2870
1260
1610
405
206
280
65
259
485
157
1000 T3/1
800
355
560
1000
4550
2000
2550
648
327
450
109
414
770
477
1600 T3/1
1250
560
900
1600
7300
3200
4100
1022
526
710
200
660
1200
1557
630 T3/2
500
450
355
630
2870
1260
1610
405
636
280
65
259
485
310
1000 T3/2
800
710
560
1000
4550
2000
2550
648
1008
450
109
414
770
946
1600 T3/2
1250
1120
900
16000
7300
3200
4100
1022
1610
710
200
660
1200
3090

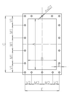
PŘIPOJOVACÍ ROZMĚRY PŘÍRUB VSTUPNÍHO HRDLA ODLUČOVAČŮ

Velikost
 odlučovače
ROZMĚRY (mm)
A
B
C
E
M1
M2
V1
V2
n
D1
b
630 T3/1
500
225
544 269 100 100 72 84,5 18 12 40
1000 T3/1
800
355
850 405 120 120 125 82,5 22 15 50
1600 T3/1
1250
560
1320 630 160 160 180 155 24 19 60
630 T3/2
500
450
544
494 100 100 72 97 22 12 40
1000 T3/2
800
710
850
760 120 120 125 140 26 15 50
1600 T3/2
1250
1120
1320
1190 160 160 180 115 32 19 60

PŘIPOJOVACÍ ROZMĚRY PŘÍRUB VÝSTUPNÍHO HRDLA ODLUČOVAČŮ

Velikost
 odlučovače
ROZMĚRY (mm)
d D d1 b n
630
355 390 10 30 12
1000
560 605 12 40 16
1600
900 960 14 5 24

PŘIPOJOVACÍ ROZMĚRY PŘÍRUB NA VÝPADU Z ODLUČOVAČŮ

Velikost
 odlučovače
ROZMĚRY (mm)
d D d1 b n
630
280 315 10 30 8
1000
450 495 12 40 12
1600
710 760 14 5 20

Odlučovače VPC

Obsah

  1. Talková ztráta odlučovače
  2. Popis
  3. Hlavní připojovací rozměry
  1. Tlaková ztráta odlučovače

  2. Popis

    • Odlučovače jsou určeny pro odlučování nelepivých, nehořlavých a nevýbušných prachů ze vzdušiny do teploty +350°C.
    • Odlučovače jsou určeny především pro podtlakový vzduchotechnický systém, použitelnost pro přetlakový systém se nevylučuje. Konstrukčně jsou řešeny pro rozdíl tlaku proti atmosféře do hodnot ±8kPa. Odlučovač VPC je ocelové konstrukce. Jsou vyráběny o jmenovitém průměru 630, 800, 1000, 1250 ,1600 mm. Podle polohy vstupního hrdla do odlučovače se vyrábí odlučovač pravý a levý. Odlučovače VPC jsou s patkami. Přívod vzdušiny vstupním hrdlem do odlučovacího článku je tečný. Po odloučení příměsí v odstředivé komoře vystupuje vyčištěná vzdušina výstupní trubkou buď do sběrného potrubí, nebo do atmosféry. Odloučené příměsi padají do výsypky nebo jsou odváděny jiným zařízením dle projektu. Vhodné umístění odlučovačů, dodávané kompletující prvky, jejich kotvení, jakož i ostatní navazující vzduchotechnická zařízení určuje projektant odlučovacího zařízení podle provozních podmínek a místní dispozice.
  3. Hlavní připojovací rozměry


 TYP A
B
øC
øD
E
F
G
H
J
øK
L
øM
N
P
R
s
hmotnost
 (kg)
630
450
200
355
636
2280
1220
1060
325
218
180
45
160
445
100
725
14
130
800
560
250
450
806
2890
1564
1326
380
278
225
40
206
565
100
920
14
204
1000
710
315
560
1006
3501
1948
1553
455
345,5
251
50
226
722
100
1120
18
308
1250
900
400
710
1256
4450
2444
2006
550
428
355
150
286
900
100
1358
18
553
1600
1000
560
900
1590
5743
3121
2622
674
515
400
115
348
1176
160
1750
18
765

PŘIPOJOVACÍ ROZMĚRY - PŘÍRUBY ČTŘHRANNÉ

A
B
otvory
bxs
m1
m2
v1
v2
C
E
d1
n
450 200 12 14 40x10 100 - 97 122 494 244
560 250 12 18 40x10 100 - 102 97 604 294
710 315 15 18 50x12 120 120 140 122,5 760 365
900 400 15 24 50x12 120 120 115 105 950 450
1000 560 15 28 50x12 120 120 105 125 1050 610

PŘIPOJOVACÍ ROZMĚRY - PŘÍRUBY KRUHOVÉ

d D
bxs
otvory
d1
n
180 215
30x5 10 8
225 260
30x5 10 8
250 285
30x5 10 8
355 390
30x5 10 12
400 445
40x6 12 12
 450  495 40x6 12 12
560
 605 40x6 12 16
 710  760 45x8 15 20
900
 960 50x8 15 24